上海
海上溪云

4006162877

点击收起
  • 样板间(7)

  • 效果图(6)

  • 实景图(5)

  • 配套图(3)

  • 交通图(1)

参考均价:60000元/㎡(单价) 537-4000万(总价)
变价提醒
楼盘地址:
浦东 秀沿路浦三路
地址发送到手机
开盘时间:
2022年01月20日
开盘提醒
交房时间:
预计2024年03月31日
主力面积:
90-449㎡
余房查询
开发商:
太仓仁铧房地产开发有限公司
更多详细信息>>
预售证号:
浦东新区房管(2022)预字0000255号

4006162877

扫码致电售楼处了解更多信息

冯琪鑫

预约看房
订阅看房动态 享受一对一的专业解答!
立即预约
楼盘优惠
抢先获取专属楼盘最新优惠活动信息!
立即预约
楼盘详情
楼盘相册
户型图
楼盘动态
优惠政策
价值分析
周边楼盘
房贷计算器
会员福利
古鱼岛会员店
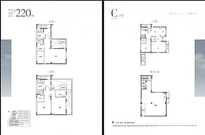
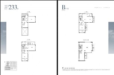
户型图
室厅卫
待定
电话
室厅卫
待定
电话
室厅卫
待定
电话
室厅卫
待定
电话
公交 地铁 学校 医院 银行
价值分析
-暂无数据-
楼盘动态
-暂无数据-
优惠政策
-暂无数据-
房贷计算器
估算房价
万/套
首付比例
还款年限
贷款利率
+
BP
=
%
月供:-
首付:-万元
贷款:-万元
利息:-
您需要开具-元/月的收入证明
1. 此结果为等额本息的计算结果;
20%
首付比例
周边楼盘